Housing Sevran

sevran (91)

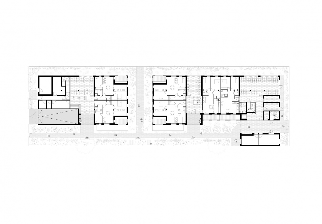
Project management for the construction of 50 housing units in Sevran.
The project is organized around a hybrid typology combining collective housing and stacked dwellings, allowing for semi-private and private use of roof terraces.

client : i3f

competition 2025
3,308 m² housing + 308 m² common areas

équipe :
bet tce : ana ingénierie
paysagiste : wald

project director : maxence fougère
project manager : martina nuzzo

rendering : antonio virga architecte